CSA #2, Low House

Marmol Radziner

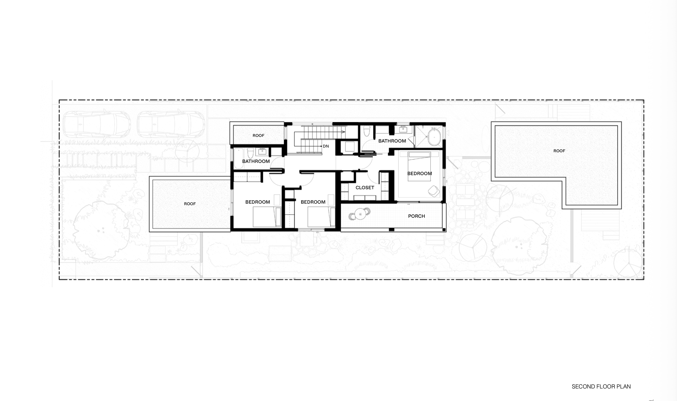
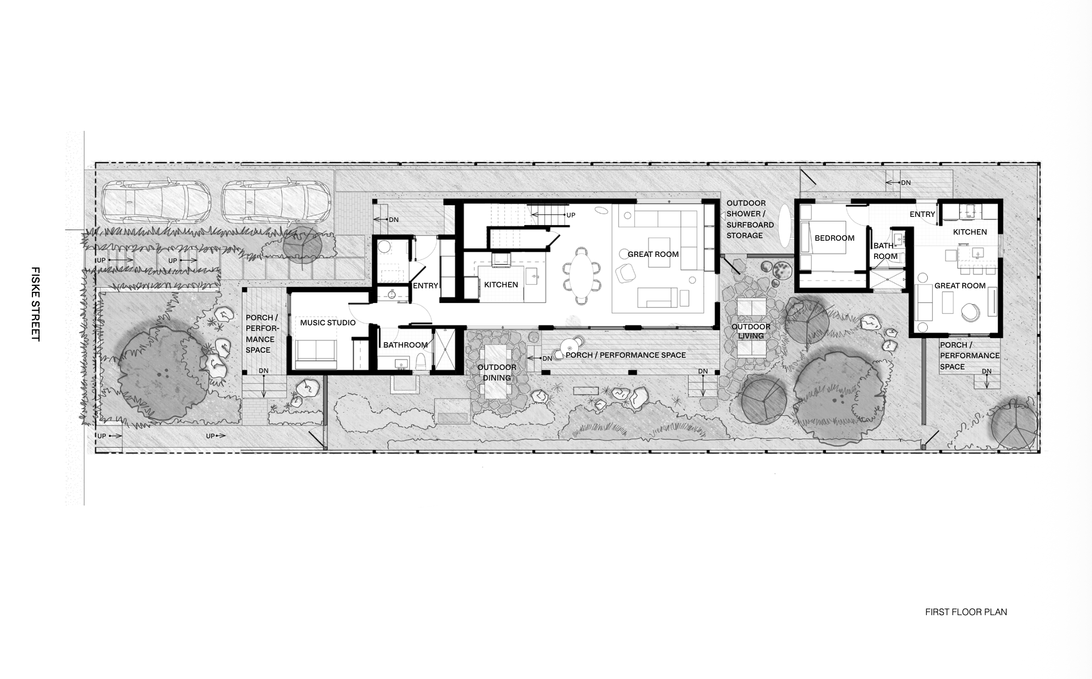
After losing their 1920s home in the Palisades Fire, musicians Neli and David Low partnered with Marmol Radziner to create a modular rebuild that unites memory, music, and climate resilience. Designed for flexibility and warmth, the two-story home opens to the landscape with deep overhangs, sliding glass doors, and cross-ventilation that support passive cooling and energy efficiency.

Fire-resilient design drives every detail: non-combustible corrugated metal cladding, fiber cement soffits, screened vents, and defensible space minimize ignition risk, while a Zone 0 garden of gravel, flagstone, and native oaks enhances safety and beauty. Eleven prefabricated modules—each built off-site with interiors nearly complete—streamline construction, reduce waste, and lower costs.

At the front, a porch and music studio celebrate the Lows’ creative spirit and the socially distanced concerts they once hosted for neighbors. The studio can later convert to a primary suite for aging in place. Salvaged bricks from their original home now form the entry steps—century-old symbols of endurance, grounding a fire-resilient future in the texture of the past.

Previous
Previous

CSA #1, Bramell House (Woods + Dangaran)

Next
Next

CSA #3, Childers House (Bestor Architecture)